Четырехкомнатная квартира 130,05 м2 по ул. Школьная 1 за 52670250 руб.

Четырехкомнатная квартира по ул. Школьная, 1 в Краснодаре
Цена 52 670 250 р. (405 000 р./м2)
Подать заявку на ипотеку
Адрес Школьная, 1
Этаж 13/23
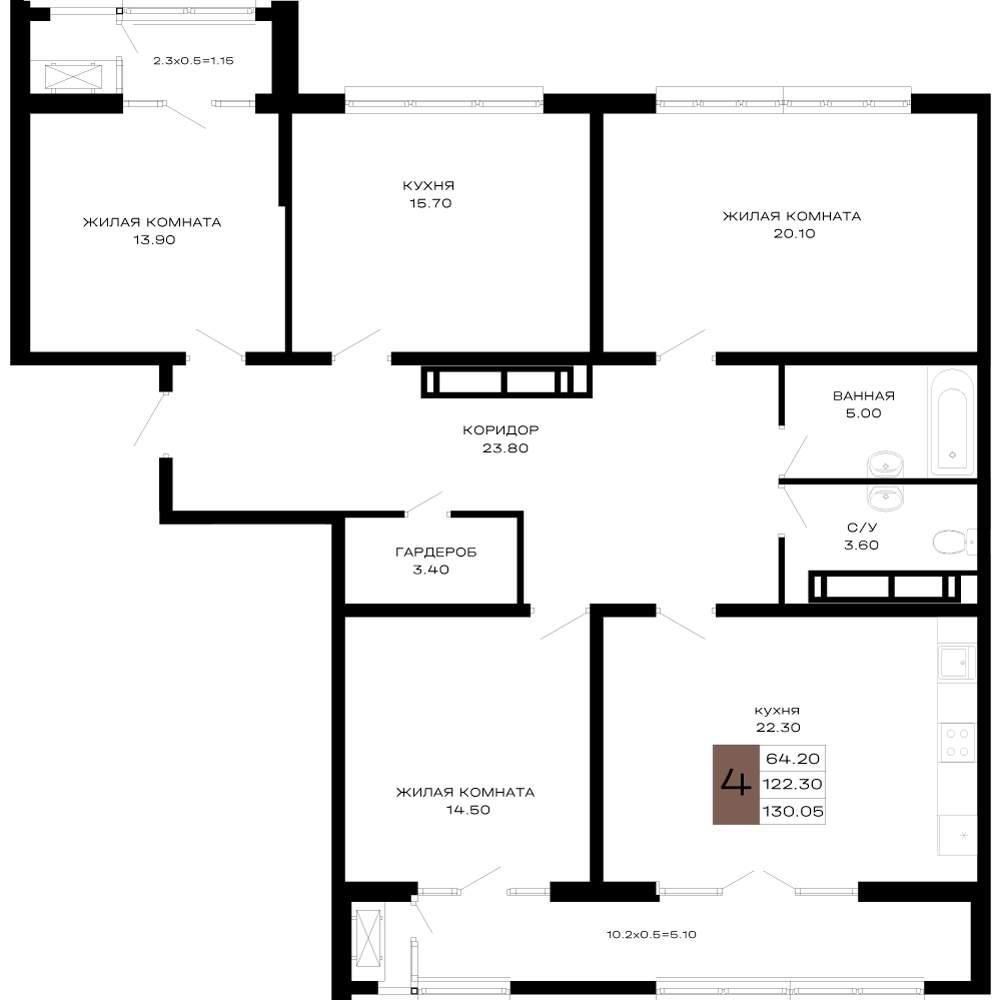
Площадь общая 130,05 м2, жилая 64,79 м2, кухни 22,6 м2
Кол-во комнат Четырехкомнатная
Продается 4-комн. квартира, площадью 130.05 м2 в монолитной новостройке. Возможен вариант покупки с использованием ипотечных средств, есть рассрочка, возможна покупка с использованием материнского капитала, есть военная ипотека. Жилая площадь 64.79 м2, кухня 22.6 м2, предчистовая отделка. Квартира располагается на 13 этаже 23-этажного дома в ЖК Сердце. Застройщик - ГК ССК, сдача дома - I квартал 2025 года, дом уже сдан, высота потолков 2.7 м. Дом оборудован пассажирским лифтом, закрытая территория, парковка охраняется. Обеспечение безопасности: видеонаблюдение, противопожарная система. Инфраструктура: детские площадки, спортивные площадки, места для отдыха, супермаркет, рестораны, фитнес-центр, пункты бытового обслуживания, коммерческие объекты. ЖК «Сердце» - это премиальный комплекс, расположенный в одном из самых престижных районов Краснодара, всего в нескольких минутах от исторического и делового центра города. Дом выполнен в стиле неоклассицизма. Высокий архитектурный стиль жилого комплекса внутри - это роскошные планировки для любой семьи: от студий до больших пятикомнатных квартир. Высокие потолки и панорамные окна - в вашем доме будет красиво, светло, просторно. Всего в 7 минутах езды находится один из самых красивых стадионов Европы и прилегающий к нему великолепный парк «Краснодар», который стал настоящей гордостью города. Аккредитованные банки: Сбербанк, Альфа-Банк, ВТБ, Банк Уралсиб, РОССИЯ, Абсолют Банк, Металлинвестбанк, РНКБ, ПСБ, Кубань Кредит, Банк ВБРР, Россельхозбанк. Позвоните и узнайте условия покупки прямо сейчас!
Описание дома
Этажность дома 23
Объявление № 23399869
Дата подачи:
16 октября 2025 г. 1:34
Дата обновления:
16 октября 2025 г. 1:48
Просмотров 1 Хотите продать быстрее?

Продавец
Отдел продаж
Показать номер телефона
Пожаловаться
Комментарии:
Добавить